New Build Warnford

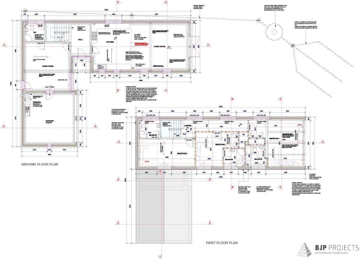
A detached new dwelling set over two floors on a former commercial brown field site in the rural village of Warnford in the heart of the Meon Valley.
Designed to complement the historic village in terms of its architectural form, materials and setting, the new dwelling comprises four bedrooms, open plan kitchen / dining / living area, separate sitting room, utility room, study and separate double garage.
A high performance building fabric and services strategy have been adopted to ensure a highly energy efficient dwelling.
Gallery












